Vila Olimpia
Cobertura à Venda
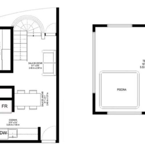
118 m² – 2 quartos – 2 vagas
Cobertura Duplex na Vila Olímpia – pronta para o seu lifestyle.
Endereço estratégico e a praticidade de já estar quase toda mobiliada.
Um convite ao estilo de vida que poucos têm.
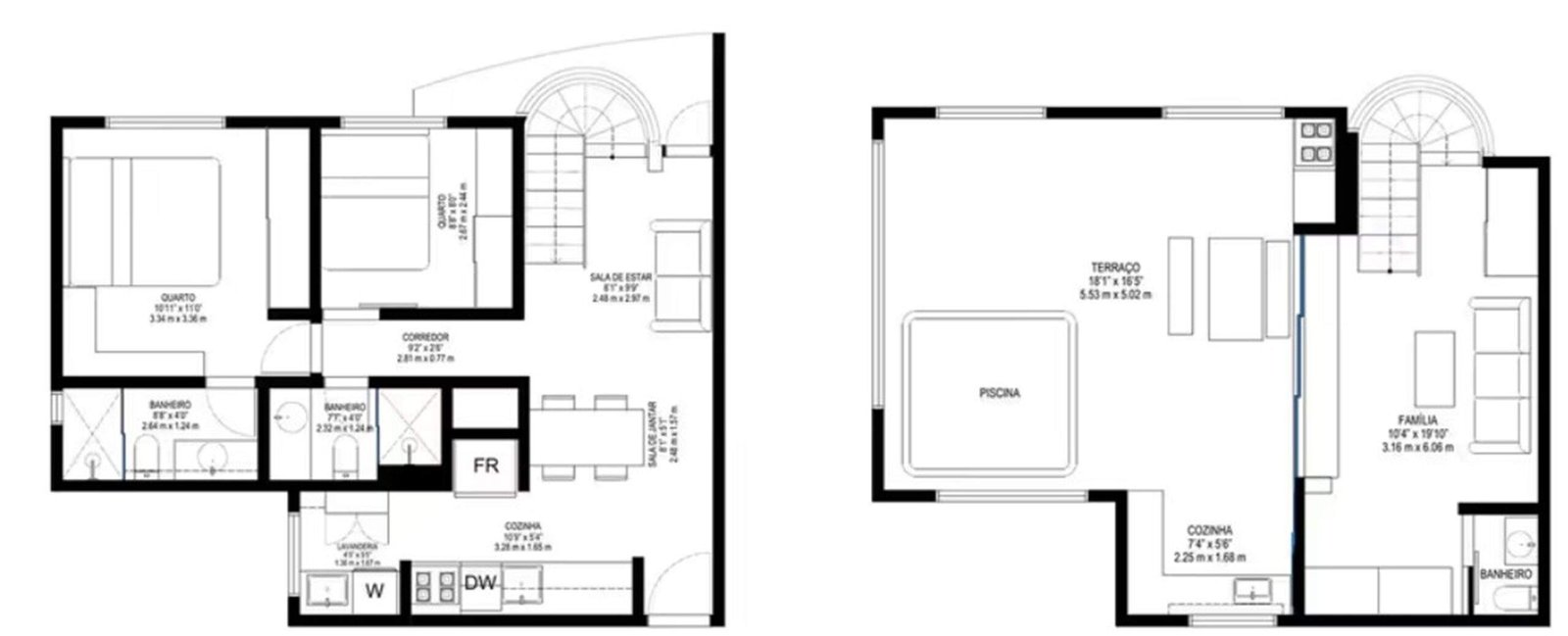
Um amplo espaço aberto e ensolarado com jacuzzi spa, área gourmet equipada e mobiliada, perfeito para receber, relaxar ou simplesmente curtir o fim do dia na sua área descoberta privativa.
Conectado a esse ambiente, há um living coberto com ar-condicionado, mobiliado com poltronas, mesa de centro, armários, frigobar e lavabo.
O living, no piso inferior, para o dia a dia é aconchegante para uma sala íntima e uma sala de almoço conectada à cozinha planejada.
A área de serviço já está com armários e possui ventilação natural.
Na parte íntima, dois quartos climatizados: a suíte já com cama, cabeceira e armários; o segundo quarto, hoje usado como closet, facilmente adaptável para home office ou 2o quarto e é atendido por um banheiro social.
O edifício tem fachada neoclássica e fica em uma localização estratégica, próximo à Rua João Cachoeira e com fácil acesso às avenidas Juscelino Kubitschek e Faria Lima. Está também a 500 metros da Praça Pereira Coutinho e a poucos minutos do Insper e da Escola Móbile, além de estar perto do Parque Ibirapuera.
Lazer: academia, piscina e salão de festas com área externa com churrasqueira























































